Cookies

We gebruiken cookies op onze website.

Sommige zijn noodzakelijk voor het functioneren van de website, maar over andere kunt u zelf beslissen.


Grote Kerkstraat 1

4651 BA Steenbergen
Vraagprijs: € 235.000,- k.k.
TE KOOP

Grote Kerkstraat 1

4651 BA Steenbergen

Vraagprijs: € 235.000,- k.k.


TE KOOP | Karakteristiek woon-/winkelpand in Steenbergen

In het kort:

  • Oppervlakte winkel: ca. 45 m²;
  • Oppervlakte woonruimte: 56 m²;
  • Vele aanwezige voorzieningen;
  • Centrum bestemming; 
  • Ideaal voor eigen gebruik of als beleggingsobject. 

Aan de levendige Grote Kerkstraat, midden in het centrum van Steenbergen, bieden wij dit karakteristieke woon-/winkelpand te koop aan. Het object combineert een commerciële plint met een zelfstandige bovenwoning, ideaal voor eigen gebruik of als beleggingsobject. De winkelruimte beschikt over een representatieve pui en de woning over een eigen entree via de zijgevel.

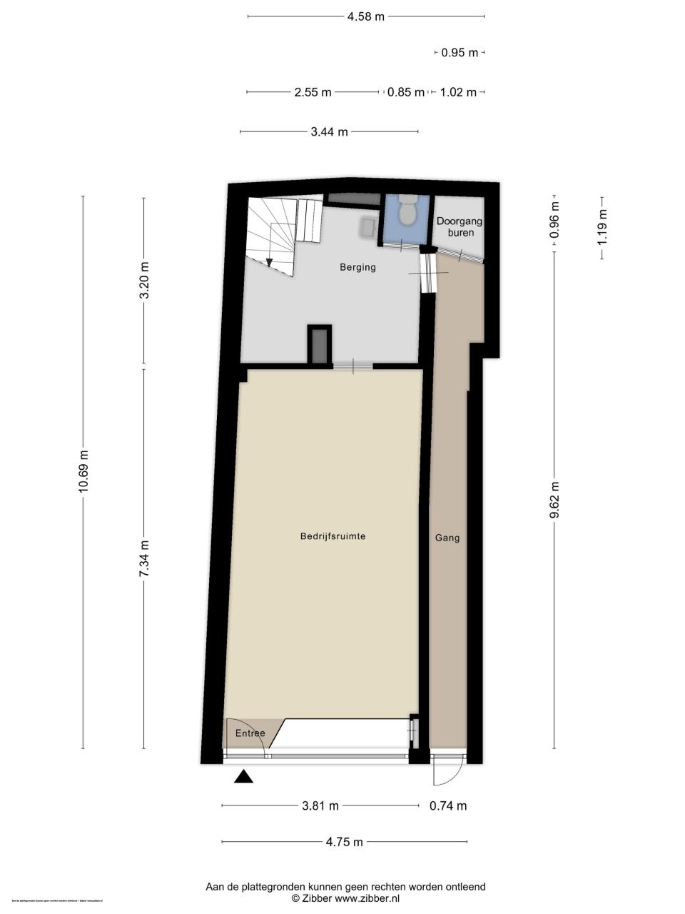
De winkelruimte is voorzien van een systeemplafond met verlichting, rolluiken, een uitstortgootsteen met koud wateraansluiting, een toilet en een wasmachineaansluiting. Daarnaast is er een gecertificeerd inbraak- en beveiligingssysteem aanwezig, alsmede een camerabewakingssysteem
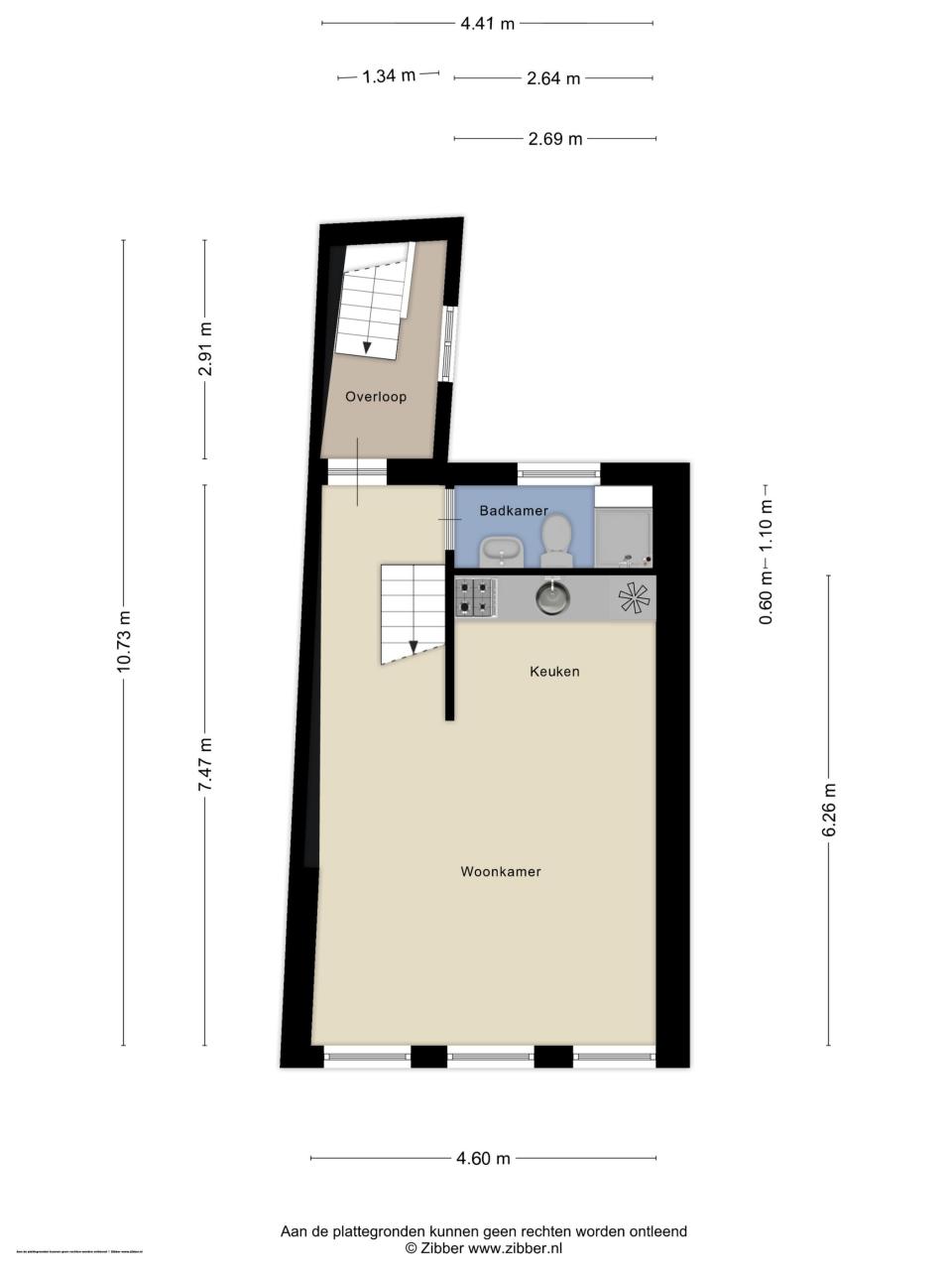
De bovenwoning is verdeeld over twee verdiepingen en omvat een woonkamer met open keuken, badkamer met toilet, twee slaapkamers en een bergruimte. Verwarming en warm water worden verzorgd via een cv-combiketel en een 2e aansluiting voor de wasmachine.

Oppervlakte
De winkelruimte omvat circa 45 m² vvo. en de bovenwoning circa 56 m² gbo.
Een NEN2580-meetrapport met plattegronden is beschikbaar.

Koopsom
Een aantrekkelijke vraagprijs van € 235.000 kosten koper

De overdracht vindt plaats in de huidige staat ("as is, where is"). Eventuele overdrachtsbelasting, notariskosten en kadastrale kosten zijn voor rekening van koper.

Exploitatie winkel
Eventueel is overname van de onderneming bespreekbaar.

Zekerheidsstelling
Ter garantie dient een waarborgsom ter hoogte van 10% van de koopsom gestort te worden op de rekening van de notaris of afgegeven te worden als bankgarantie, uiterlijk 7 dagen na volledige ondertekening van de koopovereenkomst.

Kadaster
Kadastraal bekend als gemeente Steenbergen, sectie W, nummer 1547.
Het perceel is 50 m² groot.

Energielabel
Het pand is voorzien van een energielabel. Volgens www.ep-online.nl heeft het pand label E en is deze geldig tot en met 11-12-2028.

Omgevingsplan
Het betreft bestemmingsplan Kom Steenbergen. Het heeft bestemming Centrum-1.

De voor 'Centrum - 1' aangewezen gronden zijn bestemd voor:
-wonen op bovenverdiepingen;
-detailhandel, niet zijnde supermarkten en volumineuze detailhandel;
-dienstverlening;
-kantoren;
-praktijkruimten;
-(lokale) maatschappelijke voorzieningen;
-dansscholen, sportscholen, fitnessruimten en daarmee gelijk te stellen functies;
-horeca tot en met ten hoogste categorie 2 van de Staat van horeca-activiteiten;
Tevens zijn er diverse bouw- en gebruiksregels.
Meer informatie vindt u op www.omgevingsweg.overheid.nl

Potentie
Het pand biedt mogelijkheden voor zowel particuliere beleggers als gebruikers. De winkelruimte is geschikt voor detailhandel, dienstverlening of kantoor, terwijl de bovenwoning separaat kan worden verhuurd. De ligging in de hoofdwinkelstraat, op loopafstand van winkels en horeca, maakt dit een aantrekkelijke locatie voor diverse doelgroepen.

Beschikbaar
In overleg, op korte termijn.

Algemeen
Al het bovenstaande betreft informatie omtrent de verkoop van de winkel/woonruimte aan de Grote Kerkstraat 1 te Steenbergen. De informatie is met zorg samengesteld, maar voor de juistheid ervan kan door Vastgoedleads.nl en Helmig & Fermont Bedrijfsonroerendgoed geen aansprakelijkheid worden aanvaard, noch aan de vermelde gegevens enig recht worden ontleend. Nadrukkelijk is vermeld dat deze informatieverstrekking niet als aanbieding of offerte mag worden beschouwd.

Interesse in dit object?

Vraag vrijblijvend meer informatie aan of plan een bezichtiging.

Neem contact op
Makelaar

Helmig & Fermont verzorgt de verkoop, verhuur, aankoop, aanhuur en taxaties van zakelijk onroerend goed in West-Brabant en Tholen.

Kenmerken

overdracht
vraagprijs Vraagprijs: € 235.000,- k.k.
status beschikbaar
aanvaarding in overleg
bouwjaar 1950
bouw
hoofdfunctie winkel
soort bouw bestaande bouw
onderhoud
oppervlakten
oppervlakte 45 m²
voorzieningen
alle voorzieningen Systeemplafond met verlichting Rolluiken Uitstortgootsteen met koudwateraansluiting Toilet Aansluiting voor wasmachine Gecertificeerd inbraak- en beveiligingssysteem Camerabewakingssysteem Cv-combiketel voor verwarming en warm water Tweede aansluiting voor wasmachine Open keuken
indeling en omgeving
ligging in centrum
overige opties

Vraag meer informatie aan

Vul hieronder vrijblijvend je gegevens in en ontvang meer informatie over dit object.